+ 44. Flächennutzungsplanänderung
+ Umweltbericht

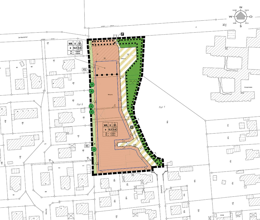
Nach Aufgabe einer am Stadtrand von Leer im Ortsteil Heisfelde betriebenen Reitsportanlage erwarb die Stadt Leer die Flächen zur Entwicklung von Wohnbebauung. Damit die geplante Bebauung sich in das Ortsbild einfügt wurde auch eine örtliche Bauvorschrift über Gestaltung aufgenommen.

<<   Zurück zur Projektübersicht